X

foto

Abitazione/ufficio con terrazzo e palestra in zona Torrino a Roma

Uno studio professionale in zona Torrino a Roma è stato trasformato in appartamento polifunzionale di abitazione/ufficio, con integrazione della terrazza in ambiente della casa grazie alla dotazione di vetrate scorrevoli e removibili. Il valore aggiunto del progetto è l'inserimento d una zona palestra connessa visivamente con il soggiorno, la trasformazione dello spazio architettonico in una struttura domotica ad alte prestazioni e l'inserimento contemporaneo degli arredi di famiglia.


Lo studio
Lo studio
Angolo cottura - Dettaglio illuminazione
Angolo cottura - Dettaglio illuminazione
Angolo cottura
Angolo cottura
Angolo cottura
Angolo cottura
Ingresso
Ingresso
Camera da letto
Camera da letto
Disimpegno alla zona notte - Dettaglio
Disimpegno alla zona notte - Dettaglio
Disimpegno alla zona notte
Disimpegno alla zona notte
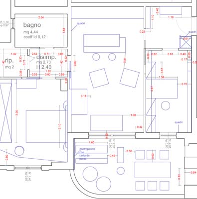
Disegni progettuali dell'appartamento
 Disegni progettuali dell'appartamento