X


foto

Via del Forte Trionfale, Roma

Lo spazio dilatato di questo appartamento romano aveva bisogno di un disegno unitario e di integrare l'interno con il grande terrazzo, nella realizzazione la continuità è stata sottolineata da un pavimento omogene in resina. I rivestimenti proposti sono pavimenti e superfici verticali di notevole eleganza in resina e rispondono alle richieste più esigenti nell'architettura degli spazi. Risultato di una tecnica innovativa, le superfici in resina sono realizzate in opera e si presentano come un prodotto artigianale, con un effetto monocromatico o nuvolato. Superficie dell'appartamento: 150 mq. Impresa edile Virgili Restauri.


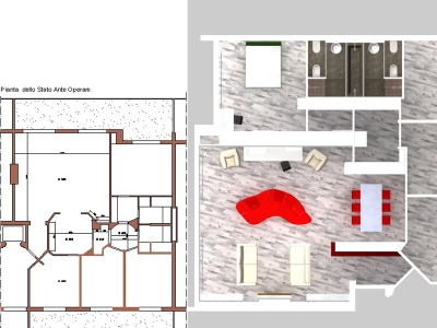
Progetto
Progetto
Resa virtuale dall'ingresso
Resa virtuale dall'ingresso
Resa virtuale della zona camino
Resa virtuale della zona camino
Resa virtuale soggiorno e pranzo
Resa virtuale soggiorno e pranzo
Zona divani
Zona divani
Zona divani e soggiorno
Zona divani e soggiorno
Zona cucina
Zona cucina
Dettaglio verso il soggiorno
Dettaglio verso il soggiorno