X


foto

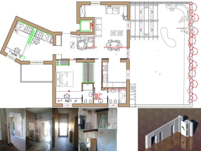
Attico con terrazzo in via Ferdinando Palasciano, Roma

L'attico, costruito come rimaneggiamento di un edificio degli inizi degli anni 1950, si presentava con una prevalenza di spazi corridoio ed estremamente frammentato. Il lavoro progettuale è stato quindi concentrato ad eliminare gli spazi di semplice percorso e a trasformare lo spazio in luogo dello stare. è stato realizzato uno spazio-soggiorno continuo a partire dalla zona lettura e ascolto musica in prossimità dell'ingresso per finire all'affaccio sulla cucina che può essere aperta o separata dalla zona pranzo. Sono state create inoltre due zone notte una con camera padronale e bagno interno, una seconda per i ragazzi, trasformabile e utilizzabile in modo flessibile grazie a una struttura in legno mobile. Un valore fondamentale ha acquisito anche l'integrazione tra l'ambiente interno con il grande terrazzo, attraverso il soggiorno e la modifica delle finestre con parapetto trasformate in ampie finestre scorrevoli. Il terrazzo è diventato un'estensione del soggiorno con zona pranzo protetta dal sistema di ombreggiatura e seduta lineare modellata in cemento con finitura a calce.


Progetto
Progetto
Dall'ingresso
Dall'ingresso
Zona studio
Zona studio
Cucina
Cucina
Falegnamerie
Falegnamerie
Dalla stanza dei ragazzi
Dalla stanza ragazzi
Bagno grande
Bagno grande
Dettagli del bagno grande
Bagno grande
Dettagli del bagno grande
Dettagli del bagno grande
Bagno piccolo
Bagno piccolo
Aerazione del bagno piccolo
Aerazione del bagno piccolo
Panca del terrazzo trattata in calce naturale
Panca del terrazzo trattata in calce naturale